Omschrijving
Woning verkocht: Aalsmeerweg 83 – 1 in Amsterdam
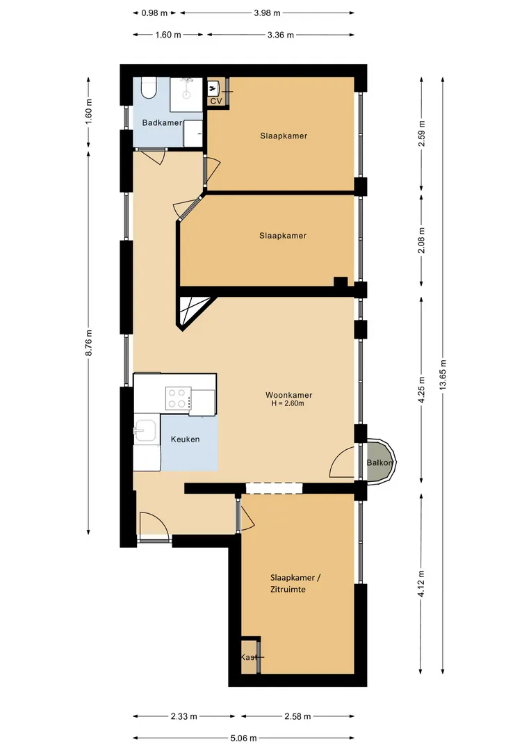
Brede en lichte woning (van ca. 61m²) met 2 (eventueel 3) slaapkamers en balkon op het westen gelegen aan de Aalsmeerweg in de Hoofddorppleinbuurt in Amsterdam Zuid. Het huis is voorzien van een ruime entreehal, woonkamer met zijkamer met een gezellige zithoek, een open woonkeuken met bar en inbouwapparatuur. De woning is voorzien van een net afwerkingsniveau, met spots in het plafond, een nette laminaatvloer en een moderne badkamer.
De woning is voorzien van HR++ glas en heeft een energielabel D geldig tot 02-01-2035. De VvE is actief en er is een onderhoudsplan de woning is gelegen op eigen grond.
INDELING
Begane grond: De entree van het trappenhuis biedt toegang tot de eerste verdieping waar de woning zich bevindt.
Eerste etage: Hal, met toegang tot de woonkamer met open woonkeuken. De ruimte laat zich sieren door de grote raamkozijnen, direct valt de breedte van de woning op. De woonkeuken biedt plaats voor een fijne keuken voorzien van apparatuur, afzuiginstallatie, afwasmachine en inductiekookplaat. Aan de dinerruimte is het balkon op het westen gelegen en de zitkamer, die eventueel ook eenvoudig kan worden aangepast naar een slaapkamer.
Er zijn 2 slaapkamers in de huidige inrichting van de woning aanwezig, deze hebben beiden een vergelijkbare oppervlakte van ca. 8m² en 9m².
Via de gang bereik je twee slaapkamers (9 m2 en 8 m2), beide met twee grote ramen en een mooie lichte badkamer. Deze badkamer is recentelijk gerenoveerd en voorzien van een zwevend toilet, douchecabine en wastafel met wastafelmeubel.
Het appartement is voorzien van een laminaatvloer en van isolerende beglazing.
De gemeenschappelijke ruimte is op elke etage voorzien van een brandmelder en alle appartementen zijn voorzien van een video-intercom met elektrische deuropener.
OMGEVING
Het appartement is gelegen in de gezellige Hoofddorppleinbuurt.
Op loopafstand is er een divers aanbod aan speciaalzaken, supermarkten, leuke koffiebars, cafés, bars en restaurants (ook aan de Amstelveenseweg en Zeilstraat), kinderopvang, basisscholen en speeltuintjes. Recreatiegebieden, zoals het Vondelpark, het Amsterdamse Bos, Nieuwe Meer en het Rembrandtpark, liggen op loop- of fietsafstand. Ook sportclubs, zoals sportscholen, tennisbanen, voetbal- en hockeyclubs liggen in de nabije omgeving. In de Westlandgracht kun je zwemmen, suppen of een bootje neerleggen (15 vaarminuten van de grachten in het centrum).
BEREIKBAARHEID
Niet alleen zit je in 2 minuten op de A-10 Ring Amsterdam en in 10 minuten op Schiphol, maar ook het openbaar vervoer is ruimschoots aanwezig: NS-stations Amsterdam Zuid en Lelylaan, tramlijnen 1, 2, 11 en 17, de metro en diverse buslijnen liggen dichtbij. Hartje centrum bereik je op de fiets in nog geen 15 minuten.
VERENIGING VAN EIGENAREN
Het appartement maakt deel uit van een actieve, uit 5 leden bestaande, VvE die in eigen beheer wordt beheerd. De servicekosten bedragen € 75,00 per maand. Recent zijn de volgende werkzaamheden aan de buitenzijde van het pand verricht: reiniging voorgevel, installatie nieuwe dakgoot en regenpijpen en schilderwerk houtwerk voor- en achterzijde. Er is een meerjarenonderhoudsplan is aanwezig.
Kerngegevens woning
Oppervlakte: ca. 61m² (NEN 2580)
Aantal kamers: 4, waarvan 2 / 3 slaapkamers
Buitenruimte: 1m²
Energielabel: geldig tot: 02-01-2035
Isolatie: isolerende beglazing HR++ glas gehele woning
Bouwjaar: 1929
Verwarming: C.V.: Intergas Kombi Kompakt HRE 28/24 bouwjaar: 2010
C.V. informatie: Leasecontract
Kadastrale gegevens
Gemeente : Sloten Noord Holland
Sectie + nummer: O 2378 A8
Aandeel: 1/5e aandeel
Eigen grond
VVE
Aantal leden: 5
Eigen beheer
Servicekosten: € 75,– per maand (per 2024)
Reserve groot onderhoud per 31-12-2024 € 10.435
MJOP: aanwezig, geldig tot en met 2028
Kamer van Koophandel nummer: 63989174
Overig
Ouderdomsclausule is van toepassing
Niet bewonersclausule is van toepassing
Notaris : ring Amsterdam
Oplevering : kan spoedig, in overleg
Deze informatie is door ons met de nodige zorgvuldigheid samengesteld. Onzerzijds wordt echter geen enkele aansprakelijkheid aanvaard voor enige onvolledigheid, onjuistheid of anderszins, dan wel de gevolgen daarvan. Alle opgegeven maten en oppervlakten zijn indicatief. Koper heeft de eigen onderzoekplicht naar alle zaken die voor hem of haar van belang zijn. Met betrekking tot deze woning is de makelaar adviseur van verkoper. Wij adviseren u een deskundige makelaar in te schakelen die u begeleidt bij het aankoopproces. Indien u specifieke wensen heeft omtrent de woning, adviseren wij u deze tijdig kenbaar te maken aan uw aankopend makelaar en hiernaar zelfstandig onderzoek te (laten) doen. Indien u geen deskundige vertegenwoordiger inschakelt
















