Omschrijving
Woning nieuw: Bataviastraat 65 – B in Amsterdam
Licht, ruim en prettig ingedeeld appartement van ca. 49 m² gelegen in de populaire Indische Buurt in Amsterdam-Oost. De woning beschikt over een royale woonkamer met open keuken en grote raampartijen die zorgen voor een prettige lichtinval. Via de openslaande deuren stap je zo op het ruime diepe balkon. De slaapkamer heeft een bijzondere, ronde erker die het appartement een uniek karakter geeft. Aangrenzend bevindt zich de net afgewerkte badkamer en suite met fraaie details.
Het huis beschikt over een energielabel C, isolerende beglazing en hoge plafonds. De woning maakt deel uit van een appartementencomplex in de Amsterdamse Schoolstijl, dat in 2009 grootschalig is gerenoveerd, met nieuwe balkons, kozijnen, elektra etc. De woning maakt deel uit van een actieve en gezonde Vve met onderhoudsplan.
De woning is gelegen op erfpachtgrond deze is afgekocht tot 31-12-2056. Verkoper heeft de overstap gemaakt naar eeuwigdurende erfpacht onder gunstige voorwaarden.
Indische buurt
De woning is gelegen in de populaire Indische Buurt in Amsterdam-Oost, een levendige en gewilde woonomgeving met alle voorzieningen binnen handbereik. Op loopafstand bevinden zich diverse winkels, supermarkten, speciaalzaken en horecagelegenheden aan onder andere de Javastraat, Dappermarkt en het Javaplein. De buurt staat bekend om haar gezellige sfeer en brede aanbod aan cafés en restaurants.
In de directe omgeving zijn meerdere recreatiemogelijkheden te vinden, zoals het Oosterpark, het Flevopark en het Frankendaelpark, ideaal voor wandelen, sporten of ontspannen in het groen. Daarnaast zijn er diverse sportvoorzieningen in de buurt, waaronder sportscholen, sportvelden en recreatiegebieden langs het water van het Amsterdam-Rijnkanaal.
Bereikbaarheid
De bereikbaarheid is uitstekend. Het openbaar vervoer is ruim vertegenwoordigd met diverse tram- en buslijnen op loopafstand en NS-stations Muiderpoort en Amsterdam Centraal op fietsafstand. Met de auto is de Ringweg A10 snel te bereiken, waardoor onder andere Schiphol en omliggende steden goed toegankelijk zijn. Ook per fiets ben je binnen circa 10–15 minuten in het centrum van Amsterdam.
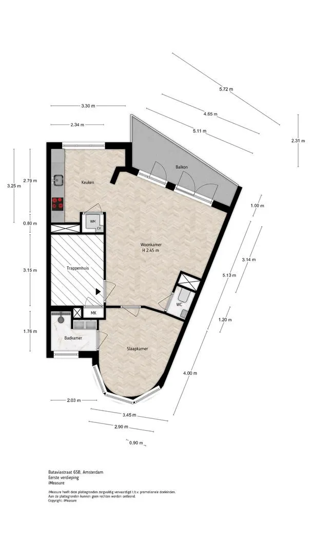
Indeling
Begane grond: entree van de woning op de begane grond met hal en trapopgang naar de eerste verdieping.
Eerste verdieping: Op de eerste verdieping bevindt zich de royale en lichte woonkamer met open woonkeuken. Dankzij de grote raampartijen aan de achterzijde geniet deze ruimte van een prettige hoeveelheid daglicht. Er is volop plek voor een ruime zithoek, eettafel en een comfortabele werkplek. De gehele ruimte is afgewerkt met een nette houtenvloer en keurig stucwerk. In de hoek van de woonkamer is een separaat toilet gesitueerd, deze is afgewerkt in dezelfde stijl als de badkamer met fraai tegelwerk en gouden details.
De moderne keuken heeft dezelfde vloer als de woonkamer en heeft een moderne look. De keuken is voorzien van diverse inbouwapparatuur, waaronder een 4-pits gasfornuis, combi-oven, vaatwasser en een koelkast met vriezer daarnaast biedt de keuken veel werk- en opbergruimte. Door de grote raampartijen valt ook hier het natuurlijke licht prettig binnen. De cv-ketel (2008) is netjes en uit het zicht weggewerkt. Er is tevens een bergkast aanwezig, deze is voorzien van een wasmachine-aansluiting.
Via de openslaande deuren bereik je het riante, op het Noordoost gelegen terras. Door de openslaande deuren is het terras goed bij de woonkamer te betrekken. Door de breedte van het dakterras kun je in de zomer heerlijk aan een tafel borrelen en dineren.
Aansluitend aan de woonkamer bevindt zich de zéér ruime slaapkamer. Wat de slaapkamer uniek maakt is de cirkelvormige erker met grote ramen, hierdoor is het altijd zeer licht in de slaapkamer. De slaapkamer biedt tevens genoeg ruimte voor een riant tweepersoonsbed, bureau en kastruimte.
Aangrenzend aan de slaapkamer bevindt zich de badkamer en-suite, de badkamer is voorzien van inloopdouche, wastafel met meubel, spiegelkast en handdoekradiator. De gehele badkamer is afgewerkt in zéér fraai tegelwerk met gouden details.
Kerngegevens woning
Oppervlakte: ca. 49 m² (NEN 2580 rapportage aanwezig)
Aantal kamers: 1 waarvan 2 slaapkamers
Buitenruimte: ca. 8 m²
Energielabel: C geldend tot 23-10-2029
Bouwjaar: 1926
Verwarming: Intergas Compact HR uit 2008
Kadastrale gegevens
Gemeente : Amsterdam
Sectie + nummer: W 8521 A8
Aandeel: 65/1207
Erfpacht: Eeuwigdurend recht van erfpacht, deze is afgekocht tot 31-12-2056. Na het tijdvak is deze vastgeklikt onder gunstige voorwaarden voor €546,58 per jaar, exclusief jaarlijkse indexering.
Algemene Bepalingen Gemeente Amsterdam: 2016
VvE
Aantal leden: 16 leden
Professioneel beheer
Servicekosten: € 112– per maand
Reserve Groot onderhoud: € 123.573
MJOP: Aanwezig
Kamer van Koophandel nummer: 34347799
Overig
Ouderdomsclausule is van toepassing
Notaris : ring Amsterdam
Oplevering kan spoedig
Deze informatie is door ons met de nodige zorgvuldigheid samengesteld. Onzerzijds wordt echter geen enkele aansprakelijkheid aanvaard voor enige onvolledigheid, onjuistheid of anderszins, dan wel de gevolgen daarvan. Alle opgegeven maten en oppervlakten zijn indicatief. Koper heeft de eigen onderzoekplicht naar alle zaken die voor hem of haar van belang zijn. Met betrekking tot deze woning is de makelaar adviseur van verkoper. Wij adviseren u een deskundige makelaar in te schakelen die u begeleidt bij het aankoopproces. Indien u specifieke wensen heeft omtrent de woning, adviseren wij u deze tijdig kenbaar te maken aan uw aankopend makelaar en hiernaar zelfstandig onderzoek te (laten) doen. Indien u geen deskundige vertegenwoordiger inschakelt, acht u zich volgens de wet deskundig genoeg om alle zaken die van belang zijn te kunnen voorzien.


























