Omschrijving
Woning verkocht: John Franklinstraat 47 – 3 in Amsterdam
Lichte en goed onderhouden, dubbele bovenwoning met een woonoppervlak van ca. 92m2 en een zonnig dakterras.
De moderne woning is gelegen in de Baarsjes in Amsterdam West in een brede en loofrijke groene straat, direct aan het Erasmuspark en dicht bij de Jan Evertsenstraat en het Mercatorplein. Het huis is voorzien van twee riante slaapkamers met goede afmetingen (eenvoudig om te zetten naar drie slaapkamers), een zeer ruime woonkamer met open keuken en kookeiland. De woning beschikt over een balkon en een prachtig dakterras (ca. 20m2), met een ligging op het westen, waardoor je vroeg in het jaar al van de zon kunt genieten!
Het appartement maakt deel uit van een actieve VvE in eigen beheer. Recent is er geïnvesteerd in de VvE: nieuwe boilers, rookgaskanalen, balkons en kruipruimte-isolatie. Daarnaast zijn bijna alle kozijnen vervangen en voorzien van isolerende beglazing. De woning heeft energielabel C en is gelegen op erfpachtgrond met een lage canon van ca. €500,- per jaar. De erfpacht is onder gunstige voorwaarden vastgelegd vanaf 2050!
Amsterdam West De Krommerdt
De woning is gelegen in de sfeervolle en populaire wijk De Baarsjes Amsterdam West. Op de Admiraal de Ruyterweg en De Clerqstraat zijn diverse leuke restaurants, cafés en supermarkten gesitueerd. Recreëren kan, in het op loopafstand gelegen Erasmuspark en Rembrandtpark.
De buurt kenmerkt zichdoor de goede bereikbaarheid met zowel openbaar als eigen vervoer. Buslijnen 18 (Slotervaart) en 352 (Geuzenveld) gaan direct naar het Centraal Station. Tramlijnen 12,13 en 14 zijn eveneens om de hoek gelegen. Parkeren kan in de buurt onder het vergunningsstelsel. De grachtengordel en het Museumplein zijn op korte fietsafstand te bereiken.
Indeling
Begane grond: Via de gemeenschappelijke entree kom je in het trappenhuis, dat je slechts deelt met één ander appartement.
Tweede verdieping: Eigen entree met garderoberuimte.
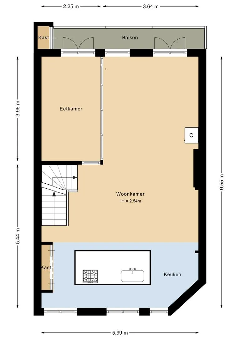
Derde verdieping: Woonkamer met toegang tot de open woonruimte. Door de grote ramen in de woonkamer is er veel lichtinval bij binnenkomst. De ruime woonkamer is aan de voorzijde voorzien van vijf grote ramen en verschillende fraai afgewerkte inbouwkasten. Tevens is de keuken hier gesitueerd. De open woonkeuken in de vorm van een eiland is voorzien van verschillende inbouwapparatuur, zoals een afwasmachine, RVS-spoelbak, 5-pits gaskookplaat en ijskast. Het kookeiland is ruim opgezet en biedt voldoende werk en bergruimte. Aan de achterzijde van de woning bevindt zich de ruime zithoek met klassieke houtkachel en ruimschoots plek voor een televisie en loungebank.
Daarnaast is er ook nog een extra slaap- c.q. werkkamer aanwezig met toegang tot het balkon. Deze kamer heeft een oppervlakte van 3,96m x 2,25m Via de openslaande deuren vanuit deze kamer heb je toegang tot het zonnige balkon. Het balkon is ook te bereiken door de openslaande deuren bij de zithoek.
Vierde etage: Ruime en lichte trap en overloop met dakramen. Op deze etage bevindt zich de ruime slaapkamer van ca. 24m2. Door het plaatsen van een wand is de kamer eenvoudig terug te brengen in twee slaapkamers. Aan de voorzijde van de kamer is een balkon gesitueerd. Via de overloop betreedt je de net afgewerkte badkamer, die beschikt over een inloopdouche, bad, handdoekradiator, dubbele wastafel en toilet. Via openslaande deuren in de slaapkamer bereik je het dakterras, waar je heerlijk van de zon kunt genieten. In het verleden heeft de eigenaar een vergunning gekregen voor het uitbouwen van het dakterras (4e etage). Deze is inmiddels verlopen, het ontwerp is wel beschikbaar. Vraag de makelaar naar de mogelijkheden.
Kerngegevens woning
Oppervlakte: ca. 92 m² (NEN 2580 rapportage aanwezig)
Aantal kamers: 3 waarvan 2 slaapkamers
Buitenruimte: 25 m²
Energielabel: C geldend tot 13-05-2035
Bouwjaar: 1926
Verwarming: C.V-ketel (HR Eco) uit 2024
Kadastrale gegevens
Gemeente : Sloten N/H
Sectie + nummer: L 3496 A3
Aandeel: 70/200
Erfpacht: Eeuwigdurend recht
Huidige Canon: €499,98,–
De erfpacht is onder gunstige voorwaarden vastgeklikt vanaf 2050.
Algemene Bepalingen Gemeente Amsterdam: 2016
VVE
Aantal leden: 3 appartementsrechten
Eigen beheer
Servicekosten: € 157,00,– per maand
Reserve Groot onderhoud per 28-04-2025: €3384,–
MJOP: niet aanwezig
Kamer van Koophandel nummer: 34315829
Overig
Ouderdomsclausule is van toepassing
Niet bewonersclausule is van toepassing
Notaris : ring Amsterdam
Oplevering kan spoedig
Deze informatie is door ons met de nodige zorgvuldigheid samengesteld. Onzerzijds wordt echter geen enkele aansprakelijkheid aanvaard voor enige onvolledigheid, onjuistheid of anderszins, dan wel de gevolgen daarvan. Alle opgegeven maten en oppervlakten zijn indicatief. Koper heeft de eigen onderzoekplicht naar alle zaken die voor hem of haar van belang zijn. Met betrekking tot deze woning is de makelaar adviseur van verkoper. Wij adviseren u een deskundige makelaar in te schakelen die u begeleidt bij het aankoopproces. Indien u specifieke wensen heeft omtrent de woning, adviseren wij u deze tijdig kenbaar te maken aan uw aankopend makelaar en hiernaar zelfstandig onderzoek te (laten) doen. Indien u geen deskundige vertegenwoordiger inschakelt, acht u zich volgens de wet deskundig genoeg om alle zaken die van belang zijn te kunnen voorzien.




































