Omschrijving
Woning verkocht: Nieuwe Kerkstraat 108 – 3 in Amsterdam
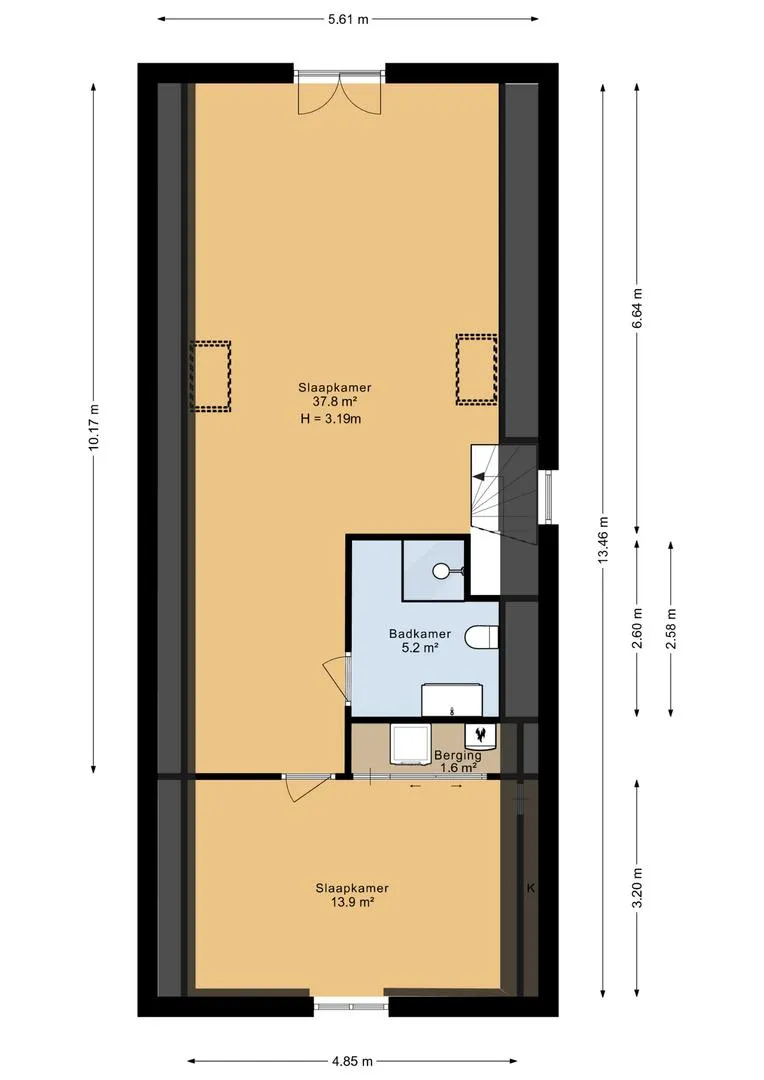
Wakker worden in deze hoge en ruime slaapkamer op de bovenste verdieping is een genot. De eerste zonnestralen komen hier altijd perfect binnen en de vogeltjes en frisse lucht zorgen ervoor dat je meteen zin hebt in de dag. Daarna samen aan het kookeiland genieten van het ontbijt klaarmaken, naar een podcast luisteren en onder het genot van een cappuccino de buurt wakker zien worden vanaf het balkon en de dag beginnen. Dit iedere dag opnieuw
Brede, ruime en lichte dubbele bovenwoning met een totaal woonoppervlak van ca. 139 m2 mét balkon en eventueel nog een mogelijkheid voor een dakterras! Deze luxe woning is gelegen op een prachtige locatie, op een van de mooiste plekken van Amsterdam, namelijk de Nieuwe Kerkstraat in de Plantagebuurt in het Centrum Oost. Het karaktervolle huis is voorzien van 4 kamers (waarvan 3 slaapkamers), een zeer ruime en lichte woonkamer, met directe connectie met open keuken met eiland, prachtige houten vloer, isolatieglas, strakke afwerking en veel lichtinval. Tevens beschikt de woning over een ruime entree en veel bergruimte.
De woning maakt deel uit van een actieve VvE met professioneel beheer. In 2018 is de fundering vernieuwd. De woning beschikt over een energielabel C en staat op eigen grond, parkeren is mogelijk via een parkeervergunning.
Plantagebuurt:
Het zonnige appartement is gelegen aan de Nieuwe Kerkstraat in de Plantage buurt in een rustig, historisch en groen deel van Amsterdam. Deze buurt, met zijn kenmerkende grachtenpanden uit de 17e en 18e eeuw, heeft een centrale ligging, maar is ook rustig. Op loopafstand bevinden zich Artis, Tropenmuseum, H’art Amsterdam, de Hortus Botanicus en de Amstel zijn om de hoek gelegen. Er zijn supermarkten, winkels en horeca in de buurt.
Bereikbaarheid:
Om de hoek ligt metrostation Weesperplein, waar de metrolijnen 51, 53 en 54 aanwezig zijn. Deze lijnen bieden directe verbindingen naar belangrijke knooppunten in Amsterdam. Amsterdam Amstel en Zuid zijn op korte afstand te bereiken. Er zijn diverse tramlijnen direct om de hoek op het Alexanderplein.
Binnen een paar minuten fietsen sta je op de Dam, in de Pijp, of bij een van de vele parken in de omgeving, zoals het Oosterpark. Via de nabijgelegen hoofdwegen Weesperstraat en Wibautstraat kun je eenvoudig de stad in- en uitrijden. Deze straten bieden directe toegang tot de A10. Ook zijn er meerdere parkeermogelijkheden op loopafstand van het huis. Op loopafstand bevinden zich de Hermitage Amsterdam, H’art Amsterdam, de Hortus Botanicus en Artis. Er zijn supermarkten, winkels en horeca in de buurt. De Utrechtsestraat ligt op loopafstand.
Indeling:
Begane grond: De hoofdingang bevindt zich op de begane grond, waarbij het trappenhuis met twee andere appartementen wordt gedeeld. Hier loop je in het trappenhuis door naar de 2e etage waar de eigen entree zich bevindt.
2e etage: Eigen entree met garderobe en ruimte voor racefietsen en/of kinderwagen.
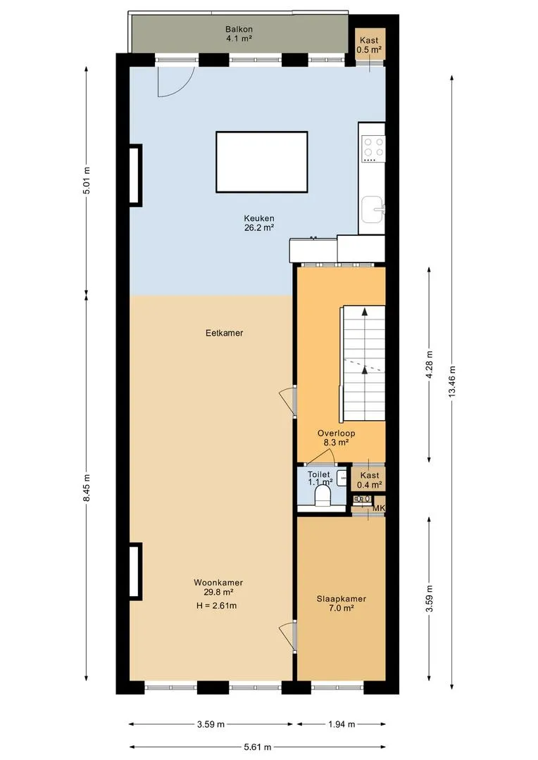
3e etage: Op de derde etage kom je binnen in de ruime hal, die is voorzien van een grote garderobekast, een prachtig toilet en extra bergruimte inclusief waterpomp.
Via de hal betreed je de ruime woonkamer met toegang naar de open woonkeuken, door de grote ramen aan beide zijden in de woonkamer beleef je veel lichtinval bij binnenkomst
De open keuken beschikt over een keukeneiland dat tevens dienst doet als bar met opbergruimte. De keuken beschikt over verschillend inbouwapparatuur: koelkast en vriezer, afwasmachine, combi-oven en kookplaat. De keuken kenmerkt zich door huiselijke stijl met keurig tegelwerk. Tevens wordt het gezellige balkon bereikt via de keuken. Deze is praktisch ingedeeld met banken, waar je gezellig in de zon kan zitten en tevens nog meer opbergruimte biedt.
De ruime woonkamer is voorzien van een nette houten vloer, fraaie balken en biedt ruimschoots plek voor een grote zithoek met tv-meubel en een eethoek met eettafel. Naastgelegen is er ook nog een extra slaap- c.q. werkkamer aanwezig (ca. 3,59m x 1,94m).
Het separaat toilet bevindt zich in de hal, deze is voorzien van net tegelwerk en een fontein. De ruimte wordt gekenmerkt door een glas in loodraam. De trap naar de vierde etage bevindt zich ook in de hal.
4e etage: Via de interne trap in de hal bereik je de slaapkamers en badkamer. De master bedroom wordt gekenmerkt door de grote ruimte, klassieke spanten, openslaande deuren en hoge plafonds onder de daknok. De ruimte is voorzien van verschillende inbouwkasten en bergruimte. De tweede slaapkamer is voorzien van dezelfde balken en beschikt over fijne afmetingen en hoog plafond. Tevens is er een kast met wasruimte aanwezig.
De badkamer is gesitueerd in het midden van de etage en beschikt over net tegelwerk, een douche, wastafel met meubel en een toilet.
De bovenste etage biedt ruimte om een trap te plaatsen naar het dak en daar een terras te bouwen. Door de vorm van het dak is dit eventueel mogelijk zonder zicht vanaf de straatkant. De VvE heeft in het verleden toestemming gegeven voor het plaatsen van een dakterras.
Kerngegevens woning
Oppervlakte: ca. 139 m² (NEN 2580 rapportage aanwezig)
Optie voor een dakterras
Aantal kamers: 4 waarvan 3 slaapkamers
Buitenruimte: 4 m²
Energielabel: C geldend tot 25-02-2031
Bouwjaar: 1865
Kombi Kompakt HRE uit 2022
Kadastrale gegevens
Gemeente : Amsterdam
Sectie + nummer: O 4354 A6
Aandeel: 2/3
Eigen grond
VVE
Aantal leden: 6 appartementsrechten (2/6 deel)
Eigen beheer
Servicekosten: €269,– per maand
MJOP: Aanwezig
Kamer van Koophandel nummer: 34372803
Overig
Ouderdomsclausule is van toepassing
Notaris : ring Amsterdam
Oplevering in overleg of kan spoedig
Deze informatie is door ons met de nodige zorgvuldigheid samengesteld. Onzerzijds wordt echter geen enkele aansprakelijkheid aanvaard voor enige onvolledigheid, onjuistheid of anderszins, dan wel de gevolgen daarvan. Alle opgegeven maten en oppervlakten zijn indicatief. Koper heeft de eigen onderzoekplicht naar alle zaken die voor hem of haar van belang zijn. Met betrekking tot deze woning is de makelaar adviseur van verkoper. Wij adviseren u een deskundige makelaar in te schakelen die u begeleidt bij het aankoopproces. Indien u specifieke wensen heeft omtrent de woning, adviseren wij u deze tijdig kenbaar te maken aan uw aankopend makelaar en hiernaar zelfstandig onderzoek te (laten) doen. Indien u geen deskundige vertegenwoordiger inschakelt, acht u zich volgens de wet deskundig genoeg om alle zaken die van belang zijn te kunnen voorzien.













































