Omschrijving
Woning onder bod: Turnhoutplantsoen 54 in Amsterdam
Licht en ruim familiehuis (ca. 112 m²) op de hoek, met een moderne open keuken, vier slaapkamers, een nette badkamer én zowel een voor- als achtertuin. De woning is gelegen in een rustige, groene straat in Nieuw-Sloten, in het westelijke deel van de stad. Op korte loopafstand vind je het Kasterleepark en met de fiets ben je zo bij het Hoofddorpplein of in Amsterdam-Zuid.
Dankzij de grote ramen is het huis bijzonder licht en voelt het overal ruim aan. Recent is de woning nog geschilderd, waardoor je er zo in kunt. De erfpacht is afgekocht tot 2041 en het appartement beschikt over een energielabel B.
Nieuw-Sloten:
Het Turnhoutplatsoen ligt in het rustige en groene stadsdeel Nieuw-West, in de wijk Sloten. Deze kindvriendelijke buurt staat bekend om de ruime opzet, het vele groen en de ontspannen woonsfeer. Op korte afstand vindt u diverse parken, waaronder het Sloterpark en de Nieuwe Meer, ideaal voor wandelen, sporten en recreatie. Voor de dagelijkse boodschappen zijn er meerdere supermarkten en winkels in de buurt, evenals scholen, kinderopvang en sportverenigingen. Bovendien bent u met de fiets zo in het centrum van Amsterdam of in het bruisende Oud-Zuid.
Bereikbaarheid:
De bereikbaarheid van het Turnhoutplatsoen is uitstekend. Met de auto bent u binnen enkele minuten op de A4, A9 en A10, waardoor steden als Haarlem, Den Haag en Utrecht goed bereikbaar zijn. Ook met het openbaar vervoer is de locatie goed ontsloten: diverse bus- en tramverbindingen brengen u snel naar Station Lelylaan, Station Sloterdijk of direct naar het centrum van Amsterdam. Schiphol Airport ligt op slechts 10 minuten rijden, wat deze locatie ook zeer geschikt maakt voor reizigers.
Indeling:
Begane grond:
U betreedt de woning via de zonnige voortuin op het zuidwesten, een fijne plek om al vroeg in het voorjaar buiten te kunnen zitten. U komt binnen in de ruime hal, die is voorzien van een garderobe, een handige bergkast en een toilet met fontein.
De woonkamer is licht en ruim opgezet en staat in directe verbinding met de open keuken. Door de grote ramen aan zowel de voor- als achterzijde valt er de hele dag door veel natuurlijk licht naar binnen, wat zorgt voor een aangename en open sfeer. In de woonkamer is meer dan voldoende ruimte voor zowel een comfortabele zithoek als een grote eettafel.
De keuken is uitgerust met diverse inbouwapparatuur en is praktisch ingedeeld, er is veel bergruimte en kastruimte. De keuken beschikt over een afwasmachine, koel-vriescombinatie, 5-pits fornuis en een oven.
Aan de achterzijde geven de schuifdeuren toegang tot de ruime en goed onderhouden achtertuin. Dankzij de gunstige ligging kunt u hier aan het einde van de dag heerlijk genieten van de avondzon. De tuin biedt volop mogelijkheden voor een loungehoek, speelruimte of een gezellige buitentafel
Eerste verdieping:
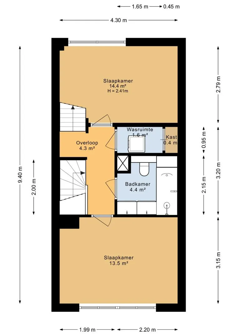
Vanaf de overloop op de eerste verdieping zijn twee slaapkamers bereikbaar, evenals de verzorgde badkamer. Deze is uitgerust met een bad-douchecombinatie, een wastafel met meubel en een handdoekradiator.
De slaapkamer aan de voorzijde van de woning meet ca. (4,30m x 3,15m) en biedt ruimte voor een bed, kast en bureau. De tweede slaapkamer, met een afmeting van ca. ( 4,30 x 2,79 m), is eveneens praktisch in te delen en daarmee zeer geschikt als kinder- of werkkamer. Beide kamers beschikken over voldoende daglicht en fijne afmetingen. Tevens is er in het midden een handig berging met wasmachineaansluiting aanwezig.
Tweede verdieping:
Op de tweede verdieping vindt u een overloop met toegang tot twee lichte en ruime slaapkamers. De derde slaapkamer heeft prettige afmetingen van ca. (4,30m x 3,60m) en de vierde slaapkamer van (2,21m x 2,69m).
Belangrijke details:
Oppervlakte: ca. 112 m²
Aantal kamers: 5 waarvan 4 slaapkamers
Buitenruimte: totaal ca. 40m2
Energielabel: B 29-10-2026 (8 zonnepanelen aanwezig)
Bouwjaar: 1992
Kadastrale gegevens:
Amsterdam Sectie + nummer: Sloten N/H E 5320
Gelegen op gemeentelijke erfpacht grond die is afgekocht tot 2041
Algemene bepaling 1966 (voortdurend)
Overig:
Ouderdomsclausule van toepassing
Notaris: Keuze koper, maar binnen de ring van Amsterdam
Oplevering in overleg








































