Omschrijving
Woning verkocht: Westlandgracht 151 – 3 in Amsterdam
Zeer lichte, luxueus gerenoveerde 3-kamerhoekwoning gelegen aan de populaire Westlandgracht in de Hoofddorppleinbuurt (Amsterdam Oud-Zuid). Deze unieke hoekwoning met 2 slaapkamers is in 2021 hoogwaardig gerenoveerd en voorzien van een eikenhouten vloer met vloerverwarming, glad stucwerk, kozijnen met HR++ glas, en een open designkeuken van Siematic. De badkamer is in 2018 stijlvol gerenoveerd.
Op de zolderverdieping bevindt zich een separate bergruimte die dankzij de nette afwerking ook uitstekend geschikt is als werk- of hobbykamer.
De woning ligt op eigen grond (geen erfpacht), beschikt over energielabel B, en maakt deel uit van een actieve en professioneel beheerde VvE.
Hoofddorppleinbuurt
Het appartement is gelegen in een gewilde woonomgeving. Op loopafstand van diverse winkels, super markten en horecagelegenheden aan het Hoofddorpplein, Zeilstraat en Amstelveenseweg. In de direc te omgeving zijn er verschillende recreatiegebieden te vinden: het Vondelpark, het Rembrandtpark, de Nieuwe Meer en het Amsterdamse Bos. Ook zijn er diverse sportvoorzieningen in de buurt gelegen, zoals sportschool Trainmore, Sportpark De Schinkel, voetbalclub AVV Swift en hockeyclubs Amsterdam, Hurley en Pinoké (Amsterdamse Bos).
Westlandgracht
Het appartement ligt direct aan het water van de geliefde Westlandgracht, geeft vrij uitzicht over de gracht en is omringd door groen. De Westlandgracht is een rustige en groene straat met gelegenheid tot aanleggen van een eigen sloep. De omgeving biedt een prettige, groene woonomgeving en is voorzien van speciale recreatieplekken en zwemplekken, inclusief hondenvrije grasstrandjes.
Bereikbaarheid
Het openbaar vervoer is ruimschoots aanwezig: NS-stations Amsterdam Zuid en Lelylaan, tramlijnen 1, 2 en 17, de metro en diverse buslijnen zijn dichtbij gelegen. Met eigen vervoer is de Ringweg A10 om de hoek, waardoor bijvoorbeeld Schiphol binnen 10 minuten te bereiken is.
Recent gerenoveerd
Het appartement is in 2021 uitgebreid gerenoveerd en hoogwaardig afgewerkt met: nieuwe Siematic designkeuken, glad gestucte muren en plafond, eikenhouten vloer met vloerverwarming (exclusief badkamer), stijlvolle tegels bij de moderne open keuken, nieuwe draai-kiep kozijnen met isolatieglas en stijlvolle design opbouwspots. De moderne badkamer is in 2018 gerenoveerd.
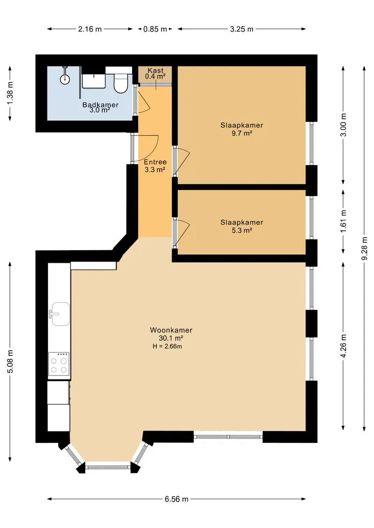
Indeling
Het appartement is bereikbaar via een goed onderhouden gedeeld trappenhuis. Via de voordeur op de derde etage betreed je het appartement.
Via de gang betreed je direct de ruime, lichte woonkamer met open keuken. Deze riante open leefruimte aan de voorzij de van de woning biedt prachtig zicht op de Westlandgracht en is omringd door groen. Dankzij de gunstige hoekligging op het zuidwesten, de karakteristieke erker en de zuidelijk georiënteerde ramen valt er volop daglicht binnen.
De open keuken staat in directe verbinding met de woonkamer, waardoor er een zeer hoogwaardige ruimte is ontstaan. De Siematic design keuken (2021) is uitgevoerd in een stijlvolle groene kleur met een hoogwaardig granieten aanrecht blad. De keuken is uitgebreid voorzien van luxe inbouwapparatuur: een oven, koelvriescombinatie , inductiekookplaat en vaatwasser van Siemens en een kokend water kraan van Franke.
De ruime hoofdslaapkamer biedt voldoende kastruimte en heeft een groot raamkozijn van waaruit je het rustige water van de gracht kan zien. Naast deze kamer bevindt zich een tweede slaapkamer, momenteel in gebruik als kinderkamer, maar ook uitstekend geschikt als werk-/studeerruimte of logeerkamer.
Aan de achterzijde van het appartement bevindt zich de luxe badkamer (2018). Deze moderne badkamer is voorzien van stijlvol tegelwerk en is ingericht met een ruime inloopdouche, badkamermeubel met wastafel, handdoekradiator en toilet. Zolderverdieping:
Op de zolderverdieping bevindt zich een ruime berging van circa 8 m². Deze keurig afgewerkte berging is voorzien van elektriciteit, wateraansluiting, afvoer en een laminaatvloer. In deze ruimte bevinden zich de CV-ketel, wasmachine en droger, hetgeen veel ruimte bespaart in het appartement zelf!
Kerngegevens woning
Oppervlakte: ca. 54 m² (NEN 2580 rapportage aanwezig)
Aantal kamers: 3 kamers waarvan 2 slaapkamers
Separate berging: op zolderetage ca 8 m²
Energielabel: B geldend tot 15-01-2035
Isolatie: HR++ beglazing, vloerisolatie en verwarming
Bouwjaar: 1933
Gerenoveerd in: 2021
Verwarming: cv-ketel Nefit HRC25 CW4, bouwjaar 2017
Kadastrale gegevens
Gemeente: Sloten
Sectie + nummer: O 2342 A8
Aandeel: 4/30
Eigen grond
VvE
Aantal leden: 8 leden
Professioneel beheer
Servicekosten: € 132,- per maand
Reserve per 31-12-2024 € 12.552,-
Kamer van Koophandel nummer: 56516754
Overig
Ouderdomsclausule is van toepassing
Notaris : ring Amsterdam
Oplevering in overleg
Deze informatie is door ons met de nodige zorgvuldigheid samengesteld. Onzerzijds wordt echter geen enkele aansprakelijkheid aanvaard voor enige onvolledigheid, onjuistheid of anderszins, dan wel de gevolgen daarvan. Alle opgegeven maten en oppervlakten zijn indicatief. Koper heeft de eigen onderzoekplicht naar alle zaken die voor hem of haar van belang zijn. Met betrekking tot deze woning is de makelaar adviseur van verkoper. Wij adviseren u een deskundige makelaar in te schakelen die u begeleidt bij het aankoopproces. Indien u specifieke wensen heeft omtrent de woning, adviseren wij u deze tijdig kenbaar te maken aan uw aankopend makelaar en hiernaar zelfstandig onderzoek te (laten) doen. Indien u geen deskundige vertegenwoordiger inschakelt, acht u zich volgens de wet deskundig genoeg om alle zaken die van belang zijn te kunnen voorzien.































